NOUVEAU SIÈGE SOCIAL DE LA CARAC

Avenue Achille Peretti à Neuilly-sur-Seine

◍ Maître d'ouvrage : CARAC
◍ Bet Économie : TCE
◍ Bet Technique : Ingénierie & Co
◍ Bet Structure : IPC Ingénierie
◍ Surface : 7000m²
◍ Coût : 12 m€
◍ Chef de projet : Thierry Wlodarczyk
◍ Label Certivea HPE Rénovation 2009
◍ Grand Prix 2018 du Geste d'Or
Raf Listowski Atelier d'Architecture création bureaux réhabilitation transformation nouveau siège social Carac Thétis felix potin Neuilly geste d'or
◍ Photographies : Grégory Copitet
◍ Lustre d'entrée : La Vague Designers



Raf Listowski Atelier d'Architecture création bureaux réhabilitation transformation nouveau siège social Carac Thétis felix potin Neuilly photographie Grégory Copitet



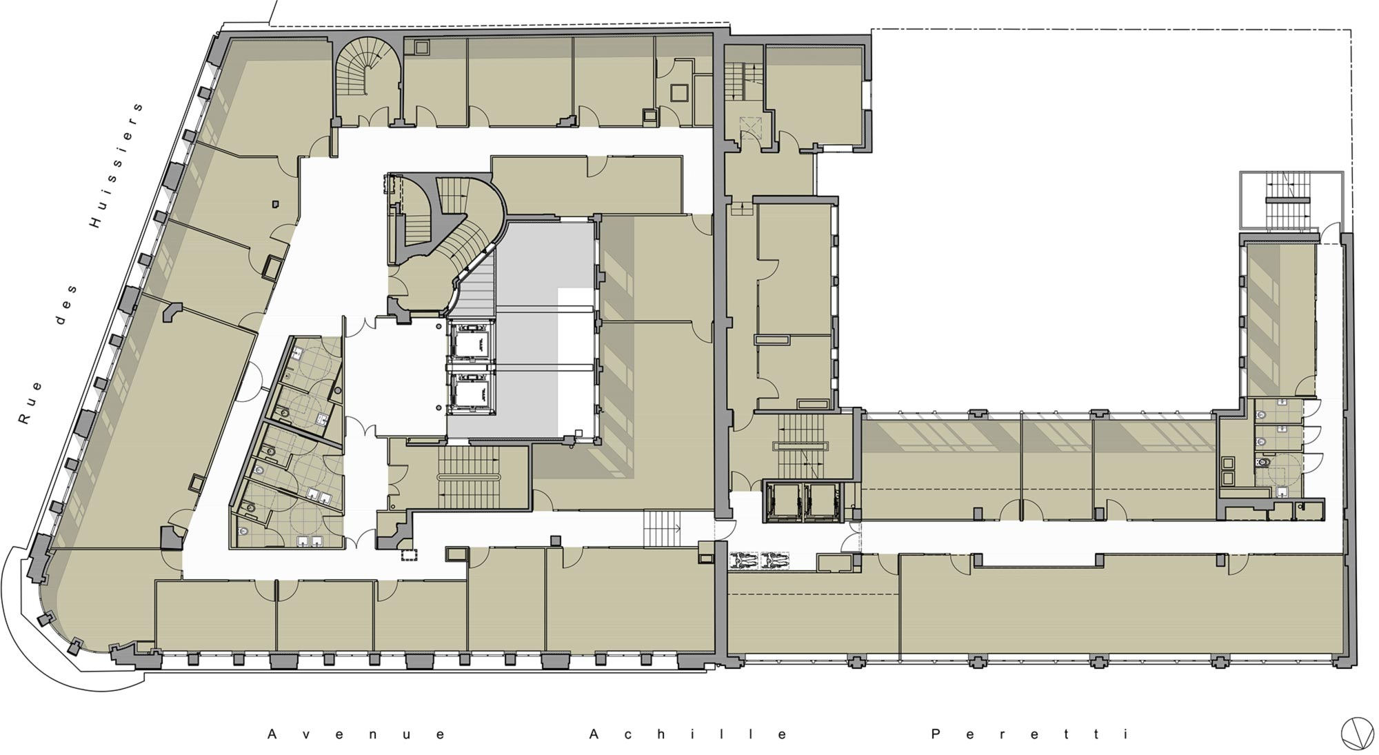
Le nouveau siège de la Carac prend place dans deux bâtiments adossés d’époques différentes. Le premier bâtiment, ancien magasin Felix Potin de 1914, à la structure complexe accueille l’ensemble des directions de la Carac. Le bâtiment plus récent accueille également des bureaux de la Carac mais réserve également trois niveaux à la location.

Même s’il s’agit d’un commanditaire unique, il s’agit de deux projets distincts par la nature même des bâtis existants qui viennent à former un tout. L’ancien Felix Potin à l’architecture éclectique du début du XXème siècle est un mélange d’architecture néoclassique et post-haussmannienne teintée d’un certain monumentalisme. Il est aussi le témoin de l’utilisation d’un nouveau matériau pour l’époque qu’est le béton armé.

Le bâtiment d’abord grand magasin, puis siège d’un laboratoire pharmaceutique et enfin siège d’une grande société englobant également le bâtiment mitoyen plus récent a été transformé maintes fois. Le curage a mis en évidence la superposition des nombreuses modifications structurelles difficilement décelables à la prise de possession des lieux. Ainsi à la nécessité de répondre au programme fonctionnel très précis de la maîtrise d’ouvrage que nous avons accompagné il a fallu nous inscrire dans la forme complexe de la structure existante tout en clarifiant et simplifiant la distribution existante.



Raf Listowski Atelier d'Architecture création bureaux réhabilitation transformation nouveau siège social Carac Thétis felix potin Neuilly

Raf Listowski Atelier d'Architecture création bureaux réhabilitation transformation nouveau siège social Carac Thétis felix potin Neuilly

Raf Listowski Atelier d'Architecture création bureaux réhabilitation transformation nouveau siège social Carac Thétis felix potin Neuilly

Raf Listowski Atelier d'Architecture création bureaux réhabilitation transformation nouveau siège social Carac Thétis felix potin Neuilly

Nous avons sculpté le bâtiment existant comme s’il était une masse afin de nous soustraire à sa typologie. Nous avons imaginé un plan par rapport au volume disponible puis cherché les meilleures solutions pour l’inscrire dans les structures existantes. C’est dans la rencontre de cet existant avec son futur qu’est née la complexité et la modernité des formes. Dans la distribution intérieure, les services communs prennent place naturellement au rez de chaussée et au sous-sol autour du patio, tandis que le dernier étage reçoit la salle du conseil, une grande salle polyvalente modulable et la cafétéria du personnel.

Le bâtiment récent subit principalement des transformations des parties extérieures. Si l’image est pratiquement inchangée sur rue elle l’est de façon plus profonde sur cour. L’ensemble des menuiseries extérieures, ainsi que les bandeaux et habillages sont remplacées par des ensemble en aluminium noir et la façade ravalé en blanc. La cour est entièrement recomposée. Deux « jardins » minéraux surélevés définissent les parcours et forme un tableau horizontal. L’ensemble forme un tout presque minimaliste.



Raf Listowski Atelier d'Architecture création bureaux réhabilitation transformation nouveau siège social Carac Thétis felix potin Neuilly



Raf Listowski Atelier d'Architecture création bureaux réhabilitation transformation nouveau siège social Carac Thétis felix potin Neuilly

Raf Listowski Atelier d'Architecture création bureaux réhabilitation transformation nouveau siège social Carac Thétis felix potin Neuilly

Raf Listowski Atelier d'Architecture création bureaux réhabilitation transformation nouveau siège social Carac Thétis felix potin Neuilly photographie Grégory Copitet

Raf Listowski Atelier d'Architecture création bureaux réhabilitation transformation nouveau siège social Carac Thétis felix potin Neuilly photographie Grégory Copitet

Raf Listowski Atelier d'Architecture création bureaux réhabilitation transformation nouveau siège social Carac Thétis felix potin Neuilly photographie Grégory Copitet

Raf Listowski Atelier d'Architecture création bureaux réhabilitation transformation nouveau siège social Carac Thétis felix potin Neuilly photographie Grégory Copitet

Raf Listowski Atelier d'Architecture création bureaux réhabilitation transformation nouveau siège social Carac Thétis felix potin Neuilly photographie Grégory Copitet

Raf Listowski Atelier d'Architecture création bureaux réhabilitation transformation nouveau siège social Carac Thétis felix potin Neuilly photographie Grégory Copitet



Raf Listowski Atelier d'Architecture création bureaux réhabilitation transformation nouveau siège social Carac Thétis felix potin Neuilly photographie Grégory Copitet

Raf Listowski Atelier d'Architecture création bureaux réhabilitation transformation nouveau siège social Carac Thétis felix potin Neuilly photographie Grégory Copitet

Raf Listowski Atelier d'Architecture création bureaux réhabilitation transformation nouveau siège social Carac Thétis felix potin Neuilly photographie Grégory Copitet



Raf Listowski Atelier d'Architecture création bureaux réhabilitation transformation nouveau siège social Carac Thétis felix potin Neuilly photographie Grégory Copitet lustre adn La Vague Designers Alice Roux et Mattia Listowski collection édition suspension lustre luminaire Isoshore 10 sur-mesure métal laque pop art décoratifs



Raf Listowski Atelier d'Architecture création bureaux réhabilitation transformation nouveau siège social Carac Thétis felix potin Neuilly croquis esquisse dessin
Raf Listowski Atelier d'Architecture création bureaux réhabilitation transformation nouveau siège social Carac Thétis felix potin Neuilly croquis esquisse dessin
Raf Listowski Atelier d'Architecture création bureaux réhabilitation transformation nouveau siège social Carac Thétis felix potin Neuilly croquis esquisse dessin
Raf Listowski Atelier d'Architecture création bureaux réhabilitation transformation nouveau siège social Carac Thétis felix potin Neuilly croquis esquisse dessin
Raf Listowski Atelier d'Architecture création bureaux réhabilitation transformation nouveau siège social Carac Thétis felix potin Neuilly croquis esquisse dessin
Raf Listowski Atelier d'Architecture création bureaux réhabilitation transformation nouveau siège social Carac Thétis felix potin Neuilly croquis esquisse dessin
Raf Listowski Atelier d'Architecture création bureaux réhabilitation transformation nouveau siège social Carac Thétis felix potin Neuilly croquis esquisse dessin
Raf Listowski Atelier d'Architecture création bureaux réhabilitation transformation nouveau siège social Carac Thétis felix potin Neuilly croquis esquisse dessin
Raf Listowski Atelier d'Architecture création bureaux réhabilitation transformation nouveau siège social Carac Thétis felix potin Neuilly croquis esquisse dessin





▨ Bureaux  ▨ Réhabilitation  ▨ Transformation 
INSTAGRAM
RL