G6 - CITÉ ADMINISTRATIVE

MARCHÉ D'INTÉRÊT NATIONAL DE RUNGIS

Rénovation architecturale de 3 bâtiments de bureaux.

◍ Maître d’ouvrage : Semmaris
◍ Surface : 6500m² de facades
◍ Livraison : 2019
◍ Montant des travaux : 1.1 m€
◍ Photographies avant travaux : Raf Listowski
◍ Photographies après travaux : Grégory Copitet



Raf Listowski Atelier d'Architecture Rungis Cité Administrative rénovation architecturale ensemble bâtiments de bureaux G6

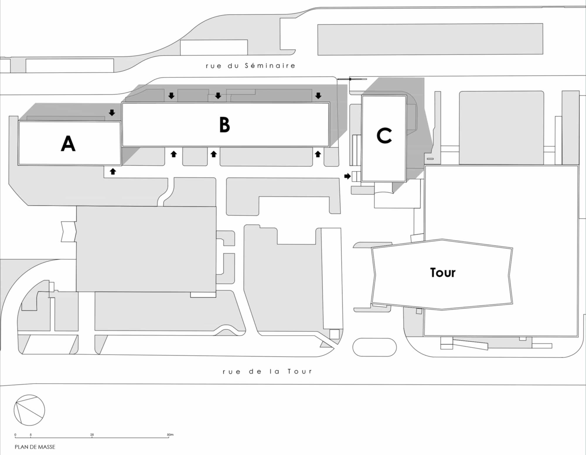
Au nord-est du marché de Rungis, le bloc G6 est composé de deux ensembles perpendiculaires, abritant des bureaux. De même hauteur mais de longueurs différentes, les bâtiments se présentent comme des monolithes banals aux percements tous identiques. Ainsi, le parti pris du projet vise à donner une nouvelle identité architecturale forte. Les bâtiments sont unifiés et lumineux grâce à un revêtement blanc. Des jeux de volumes ponctuent les façades et apportent des touches discrètes de couleurs vibrantes, offrant du mouvement au bâti. Il s’agit de trouver un mode d’expression propre et singulier, sans tomber dans une forme de mimétisme avec les bureaux G5, dessinés et livrés en 2016 et situés à l'opposé de la tour de la Semmaris.

Raf Listowski Atelier d'Architecture Rungis Cité Administrative rénovation architecturale ensemble bâtiments de bureaux G6

Raf Listowski Atelier d'Architecture Rungis Cité Administrative rénovation architecturale ensemble bâtiments de bureaux G6

Raf Listowski Atelier d'Architecture Rungis Cité Administrative rénovation architecturale ensemble bâtiments de bureaux G6

Le principe du projet est de redonner une identité forte à ces bâtiments tout en trouvant un mode d’expression qui leur soient propre, sans entrer dans une forme de mimétisme avec les bâtiments G5 situés à l’opposé de la Tour de la Semmaris que nous avons livrés en 2016.


Raf Listowski Atelier d'Architecture Rungis Cité Administrative rénovation architecturale ensemble bâtiments de bureaux G6

Raf Listowski Atelier d'Architecture Rungis Cité Administrative rénovation architecturale ensemble bâtiments de bureaux G6

Raf Listowski Atelier d'Architecture Rungis Cité Administrative rénovation architecturale ensemble bâtiments de bureaux G6

Raf Listowski Atelier d'Architecture Rungis Cité Administrative rénovation architecturale ensemble bâtiments de bureaux G6

Raf Listowski Atelier d'Architecture Rungis Cité Administrative rénovation architecturale ensemble bâtiments de bureaux G6

Raf Listowski Atelier d'Architecture Rungis Cité Administrative rénovation architecturale ensemble bâtiments de bureaux G6

Raf Listowski Atelier d'Architecture Rungis Cité Administrative rénovation architecturale ensemble bâtiments de bureaux G6






▨ Bureaux  ▨ Transformation 
INSTAGRAM
RL