ANCIENNE COMÉDIE

RUE DE L'ANCIENNE COMÉDIE - PARIS VI

Transformation d'un bâtiment historique en logements et locaux professionnels

Raf Listowski Atelier d'Architecture bureaux logements transformation bâtiment historique ancienne comédie locaux professionnels paris 6 geste d'or
Geste d'Or 2020, catégorie Architecture, Patrimoine et Scénographie
Lire plus...

◍ Maître d'ouvrage : SICAC / CNP Assurances / AEW Ciloger AMO ; Elan - AMO Environnement ; Manexi - AMO Acoustique
◍ Architecture : Atelier Raf Listowski
◍ Chargée de projet conception : Leili Parsan
◍ Chargé de projet exécution : Thierry Wlodarczyk
◍ BET : CET Ingénierie
◍ Surface : 1200m² SDP
◍ Montant des travaux : 3.45 m€
◍ Livraison : septembre 2020
◍ Performance énergétique : HQE Bâtiment Durable 2015 ;
BBCA Rénovation ; NF Habitat v2.2 Contruction Logement
◍ Photographies avant travaux : Raf Listowski
◍ Photographies pendant et après travaux : Grégory Copitet
◍ Prix du Geste d'Or 2016 - projet amont



Raf Listowski Atelier d'Architecture bureaux logements transformation bâtiment historique ancienne comédie locaux professionnels paris 6 geste d'or

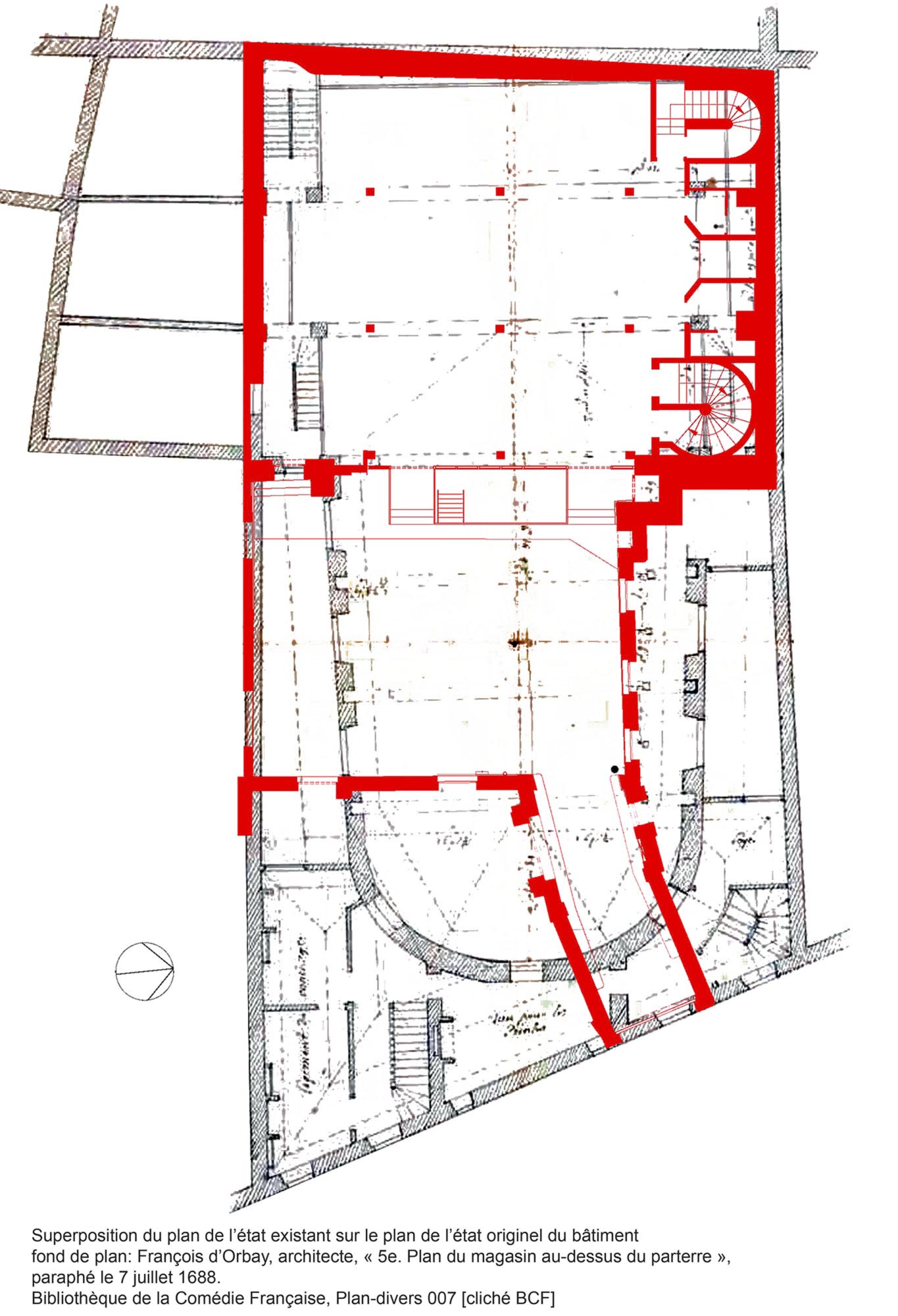
Situé rue de l’Ancienne Comédie, le projet s’inscrit dans un site au passé chargé. D’abord salle où se pratique le jeu de paume, puis salle de théâtre dans laquelle s’installera la troupe de Molière, le bâtiment dessiné par d’Orbay subira de nombreuses transformations dès la moitié du XVIIIème siècle. La salle sera démolie et le bâtiment des foyers sur rue transformé en immeuble de rapport. Seul le volume de la scène subsistera presque intact. Il sera transformé en atelier de stockage de décors et de fabrication de costumes pour la Comédie française, puis en ateliers d’artistes et en bureaux dans les années 1980-1990.

Dans cette nouvelle transformation l’immeuble renoue avec la tradition parisienne des « bâtiments ateliers » tout en préservant les éléments historiques protégés: charpentes, pilastres, volumes maçonnés...

Raf Listowski Atelier d'Architecture bureaux logements transformation bâtiment historique ancienne comédie locaux professionnels paris 6 geste d'or

Raf Listowski Atelier d'Architecture bureaux logements transformation bâtiment historique ancienne comédie locaux professionnels paris 6 geste d'or

Raf Listowski Atelier d'Architecture bureaux logements transformation bâtiment historique ancienne comédie locaux professionnels paris 6 geste d'or

Raf Listowski Atelier d'Architecture bureaux logements transformation bâtiment historique ancienne comédie locaux professionnels paris 6 geste d'or

Raf Listowski Atelier d'Architecture bureaux logements transformation bâtiment historique ancienne comédie locaux professionnels paris 6 geste d'or

Raf Listowski Atelier d'Architecture bureaux logements transformation bâtiment historique ancienne comédie locaux professionnels paris 6 geste d'or

Raf Listowski Atelier d'Architecture bureaux logements transformation bâtiment historique ancienne comédie locaux professionnels paris 6 geste d'or

Raf Listowski Atelier d'Architecture bureaux logements transformation bâtiment historique ancienne comédie locaux professionnels paris 6 geste d'or

Raf Listowski Atelier d'Architecture bureaux logements transformation bâtiment historique ancienne comédie locaux professionnels paris 6 geste d'or

Raf Listowski Atelier d'Architecture bureaux logements transformation bâtiment historique ancienne comédie locaux professionnels paris 6 geste d'or

Raf Listowski Atelier d'Architecture bureaux logements transformation bâtiment historique ancienne comédie locaux professionnels paris 6 geste d'or

Raf Listowski Atelier d'Architecture bureaux logements transformation bâtiment historique ancienne comédie locaux professionnels paris 6 geste d'or



Raf Listowski Atelier d'Architecture bureaux logements transformation bâtiment historique ancienne comédie locaux professionnels paris 6 geste d'or



Raf Listowski Atelier d'Architecture bureaux logements transformation bâtiment historique ancienne comédie locaux professionnels paris 6 geste d'or photographie Grégory Copitet

Raf Listowski Atelier d'Architecture bureaux logements transformation bâtiment historique ancienne comédie locaux professionnels paris 6 geste d'or photographie Grégory Copitet

Raf Listowski Atelier d'Architecture bureaux logements transformation bâtiment historique ancienne comédie locaux professionnels paris 6 geste d'or

Raf Listowski Atelier d'Architecture bureaux logements transformation bâtiment historique ancienne comédie locaux professionnels paris 6 geste d'or

Raf Listowski Atelier d'Architecture bureaux logements transformation bâtiment historique ancienne comédie locaux professionnels paris 6 geste d'or photographie Grégory Copitet



Raf Listowski Atelier d'Architecture bureaux logements transformation bâtiment historique ancienne comédie locaux professionnels paris 6 geste d'or photographie Grégory Copitet






▨ Bureaux  ▨ Logements  ▨ Transformation 
INSTAGRAM
RL