ZAC DIDOT

PARIS XIV

Immeuble de logements en accession sociale à la propriété.

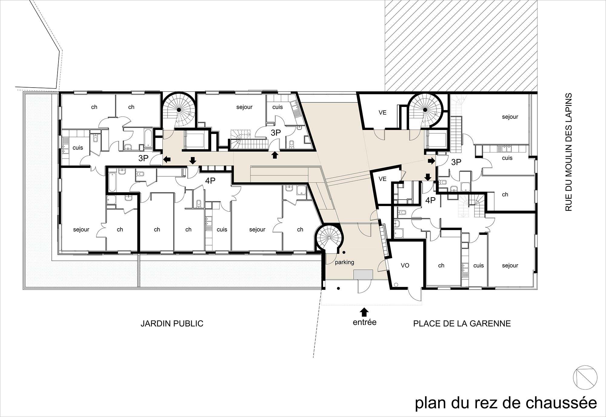
◍ 29 logements et parkings place de la Garenne
◍ Maître d’ouvrage : SAGI
◍ Aménageur : SEMEA 15
◍ Bet : BETC
◍ Surface : 3000m²
◍ Coût : 3.5 m€


Raf Listowski Atelier d'Architecture Zac Didot Sagi Semea 15 construction immeuble logements accession propriété

Raf Listowski Atelier d'Architecture Zac Didot Sagi Semea 15 construction immeuble logements accession propriété

L’îlot est situé dans le cœur de la ZAC Didot dans le XIVème arrondissement de Paris. Le quartier dont il est question a subi de très nombreuses transformations au cours des quarante dernières années et on peut y les diverses tendances qui ont vu le jour au fur et à mesure de l’apparitions de concepts urbains souvent contradictoires.

Raf Listowski Atelier d'Architecture Zac Didot Sagi Semea 15 construction immeuble logements accession propriété

Raf Listowski Atelier d'Architecture Zac Didot Sagi Semea 15 construction immeuble logements accession propriété

Raf Listowski Atelier d'Architecture Zac Didot Sagi Semea 15 construction immeuble logements accession propriété

Situé entre les rues Raymond Losserand, Didot, Pernety et la rue du Château, cet intérieur d’îlot entièrement piétonnier accueille en son centre une place et un jardin public. L’immeuble longe le jardin et la place tandis que son petit côté longe la rue du Moulin des lapins qui traverse tout l’îlot. La façade principale qui forme la toile de fond de cet espace collectif fait face au Château Ouvrier.



Raf Listowski Atelier d'Architecture Zac Didot Sagi Semea 15 construction immeuble logements accession propriété

Raf Listowski Atelier d'Architecture Zac Didot Sagi Semea 15 construction immeuble logements accession propriété

Raf Listowski Atelier d'Architecture Zac Didot Sagi Semea 15 construction immeuble logements accession propriété

Couronné par sa toiture courbe en zinc dans sa partie sur la rue et sur la place qui l’inscrit dans la continuité de l’existant et par les aménagements des terrasses situées en couverture de la partie faisant face au jardin public, l’immeuble répond par sa forme et la juxtaposition des éléments qui le composent tant au besoin d’intimité de la vie de ses habitants qu’à l’urbanité que lui donne sa position dans ce nouveau quartier.



Raf Listowski Atelier d'Architecture Zac Didot Sagi Semea 15 construction immeuble logements accession propriété





Raf Listowski Atelier d'Architecture Zac Didot Sagi Semea 15 construction immeuble logements accession propriété


Raf Listowski Atelier d'Architecture Zac Didot Sagi Semea 15 construction immeuble logements accession propriété


Raf Listowski Atelier d'Architecture Zac Didot Sagi Semea 15 construction immeuble logements accession propriété








▨ Logements 
INSTAGRAM
RL